Another component of the proposed off- campus modules and phasing is the integration and revitalization of Show Low Main Street using Huning and 8th street connections. These masterplans propose that over the next several decades, Huning Street develops into a pedestrian-friendly connection for students and faculty, linking campus with commercial, retail, and government offices. This street will not only be a means for connections but will become a destination in and of itself through the integration of focus areas and connection hubs. |
 |
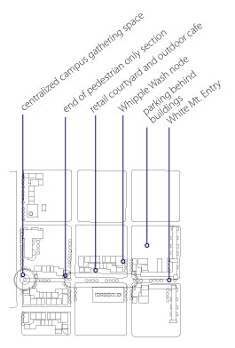
HUNING STREET CONCEPT 1
Concept 1 proposes a strong building and street orientation with Whipple Wash and a more decentralized plan for the Huning Pedestrian Mall. |
FOCUS AREAS
Several focus areas along Huning Street are highlighted in this section of the website; from a central gathering space at the intersection of Huning Street and 8th Street to the confluence of Whipple Wash and 10th Street.
CONNECTION HUBS
Connection hubs are smaller in scale than the focus areas and make up smaller destinations that link the larger focus areas. Within this master plan, connection hubs made up of small outdoor cafes, rooftop viewing and living spaces, outdoor performance areas, and seating areas are proposed.
These hubs of activity will bring Huning Street alive in all seasons and times of day. Not only will they create stronger connections between the campus and downtown Show Low, but when viewed at a larger scale they are the webs and foundations that create Show Low’s new “green heart” and walkable community, attracting visitors from afar on special excursions, as well as residents and students alike on a daily basis. These hub areas are for all users, from the young to the old. |
| The Huning Street Pedestrian Mall may begin as a Sunday event, where a temporary closing of several blocks of Huning make way for a specialty farmers market or weekly antique and crafts fair. As the campus and University District gain popularity and economic vitality, so will Huning Street, eventually creating a central core to Show Low’s University District. |
 |
HUNING STREET CONCEPT 2  Huning Street Concept 2 proposes a more linear orientation to Huning Street while still celebrating the Whipple Wash connection.
Among the proposals is a pocket park at the intersection of Whipple Wash and Huning as well as a strong central gathering node at the Huning and Campus connection. |
 |
|
INTERIOR COURTYARDS
Building setbacks are limited creating a strong connection between building facades and the pedestrian areas. Buildings are “doubled faced” created interior courtyards for both employees and shoppers alike to use for relaxation, conversation and outdoor eating spaces.
ROOFTOP LIVING
Building roofs are converted for outdoor living spaces with seating, small gardens and excellent views of campus, the meadow and downtown Show Low. For residents, the rooftop becomes an extension of their daily lives while tourists and students use rooftop spaces as meeting and gathering hubs. |
HEALTHY COMMUNITY
Creating a healthy community for Show Low begins in the downtown University District where walkability is promoted for students, residents and tourists. This confluence of commercial, residential and education spaces becomes the foundation for a unique and vibrant community. |
 |
CONVENTION HUB
Through the intersection of retail, government, and education spaces, a new destination is created, inspiring business leaders from the medical, green industry, or business fields to make Show Low the destination for their conventions and seminars. Here Huning Street comes alive and provides the perfect setting for all tourist based convention needs, while the campus supports the buildings and meeting space needs during the day.
HOLIDAY GET-AWAY
From parents’ weekend to winter and summer attractions, downtown Huning Street acts as the “flex space” for weekend visitors or summer residents. All their needs can be found between the Deuce, Huning Street, and White Mountain Road, creating a self sufficient car-free vacation and walking experience. |
A native plant palette and centralized planting plan create a linear connection from campus to the meadow. Stormwater is collected from hardscape elements and filtered through a centralized swale. Outdoor cafes further reinforce these exterior living spaces.
 |
WHIPPLE WASH
Whipple Wash will once again be integrated into the city’s urban fabric, becoming a hub and connection between Show Low Campus, Huning Street, and the meadow. Whipple Wash is restored with native vegetation and once again becomes a prominent feature and destination to experience within the university district and downtown Show Low.
The central swale that leads from campus down Huning feeds into Whipple Wash at the corner of Huning and 10th street. Here a performance or gathering space is initiated at this confluence of urban and natural systems. |
 |
POCKET PARKS
Whipple Wash creates unique opportunities for small pocket parks that allow for creek viewing during precipitation events. These pocket parks are small green nodes that soften and buffer the wash from downtown Show Low while showcasing the very special hydrology of the region though interpretative signage. These pocket parks may also be spaces where local artist setup weekend artwalk events or school children come to conduct their science labs. Tourists and visitors may find these spaces a perfect chance to get in some wildlife viewing as migratory birds rest amongst the riparian vegetation along the wash. |
 |
GREEN FINGERS
Whipple Wash creates unique opportunities for connecting the greater Show Low neighborhood areas with the university district. These green fingers act as a conduit for residents and wildlife to flow to downtown, further instilling the connections between the region’s natural and human systems. |
 |